تخطيط هندسي لمنزل طوله 20متر وعرضه5 متر : خرائط بناء حسب الطلب المنشورات فيسبوك / 20 متر = 20000 مليمتر.

تخطيط هندسي لمنزل طوله 20متر وعرضه5 متر : خرائط بناء حسب الطلب المنشورات فيسبوك / 20 متر = 20000 مليمتر.. التحويل بين الوحدات (m → mm) أو راجع جدول التحويل. 2 هكتار كم يساوي من متر؟ ويتوقف نوع العينه علي تتابع طبقات التربه. موضوع جيد لكن للاسف ينقصه تحديد كم يتسع كل كونتينر يعني ابو ٢٠ قدم كم ياخذ متر مكعب يعني كم cbm وابو ٤٠ قدم كم ياخذ ؟ تصميم منزل 100متر مربع 5 * 20 م2 home design 5 x 20 m into 3 bedrooms ketchin 3 bath dining room reception.

طبعاً أنا بحثت كثيراً لكن كل المخططات اللي كنت أحصل عليها لفلل وقصور وإحنا يا دوب منزل صغير وكفاها الله. اذا رسمنا خط طوله 5سم بمقياس رسم 1:20 كم تعطينا سانتي متر فالحقيقه. ويتوقف نوع العينه علي تتابع طبقات التربه. ما هي تكلفة شراء قوالب الطوب التي يجب استخدامها لبناء حائط على شكل متوازي مستطيلات طوله 20م، و. وتم اكتشاف الجسم بمقاطعة كاتشين.

Palace Daisy Billy Goat رسم هندسي لمنزل 196 متر واجهة 14 متر Abrazame Wedding Com
Palace Daisy Billy Goat رسم هندسي لمنزل 196 متر واجهة 14 متر Abrazame Wedding Com from img.interiola.com
در این آموزش شما تبدیل واحد های اندازه گیریمتر سانتی متر و میلی متر را در اسکچاپ یاد خواهید گرفت برای آموزش های بیشتر به اسکچاپر سری بزنید sketchuper.ir. يمتاز هذا البيت عن غيره بأنه سهل البناء والإدارة، ويمكن بناؤه بتكاليف قليلة حيث يبلغ طوله أربعة أمتار وعرضه متران ، أما ارتفاعه فمتر واحد، وبعد انتهاء الموسم يمكن فكه وخزنه، ويحمله شخصان لخفة وزنه. تخطيط هندسي لمنزل طوله 20متر وعرضه5 متر : ‫وتشمل أعمال تخطيط الموقع والد والحفر والردم‬ ‫والحلل ونقل التربة وصب الخرسانات العادية والمسلحة‬ ‫‪.‬وبناء الحوائط ووضع الطبقات العازلة ‫تقاس جميع أعمال البياض الداخلي هندسيًا بالمتر‬ ‫المسطح للسقف والحوائط والكمرات وتخصم منه الفتحات‬ ‫‪.‬والجزاء الغير مبيضة كل. نقدم لكم خريطة منزل مع الواجهة (5*20). صندوق تسجيل طوله 11 وعرضه 7 وارتفاعه 1.5 ما مساحة السطح الكلية لحزمة تحتوي على 5 أشرطة تسجيل من نفس النوع. بسْمِ اللهِ الرَّحْمنِ الرَّحِيمِ متابعينا الافاضل نقدم لكم مجموعة من واجهات المنازل واجهات منازل بعرض (7 متر) نتمنى ان تنال رضاكم. طوله 100 متر وعرضه 100 متر.

رø³ù… تصميم منزل 100متر مربع 5 * 20 م2 home design 5 x 20 m into 3 bedrooms ketchin 3 bath dining room reception.

وذكرت أن الجسم الهاوي، اسطواني الشكل يبلغ طوله 4.5 متر وعرضه 1.2 متر. ,4 م مكعب رمل ,8 متر مكعب سن (زلط) 350 كج أسمنت 175 لتر مياة صالحة للشرب. بسْمِ اللهِ الرَّحْمنِ الرَّحِيمِ متابعينا الافاضل نقدم لكم مجموعة من واجهات المنازل واجهات منازل بعرض (7 متر) نتمنى ان تنال رضاكم. تصميم منزل 100متر مربع 5 * 20 م2 home design 5 x 20 m into 3 bedrooms ketchin 3 bath dining room reception. للفائدة خارطة بيت مساحه 100متر واجهه 5ونزال20. موضوع جيد لكن للاسف ينقصه تحديد كم يتسع كل كونتينر يعني ابو ٢٠ قدم كم ياخذ متر مكعب يعني كم cbm وابو ٤٠ قدم كم ياخذ ؟ رابط صفحتي على الفيس بوك رابط كروب معلومات هندسية للمقبلين على البناء видео اروع خارطة 100 متر 5×20 عجبتني كولش канала صباح المصور. صندوق طوله 4 متر وعرضه 3 متر وارتفاعه 2 متر فإن حجمة = 4×3×2=24 متر مكعب. , شكل هندسي له تسعةحروف وخمس اوجه وستة روس. تصميم ذكي لمنزل 100 متر مربع !! تكون طولها 20 قدم ( حوالى 6 متر ) مع عرض معين (حدود2.5 متر ) وارتفاع معين ( حدود 2.6 متر ). ويتوقف نوع العينه علي تتابع طبقات التربه. تخطيط هندسي لمنزل طوله 20متر وعرضه5 متر :

رø³ù… تصميم منزل 100متر مربع 5 * 20 م2 home design 5 x 20 m into 3 bedrooms ketchin 3 bath dining room reception. ويتوقف نوع العينه علي تتابع طبقات التربه. بما أن سمك جدران الخزّان متر واحد فإن أبعاد الخزان الداخليّة ستقل بمقدار 2م عن أبعاده الخارجية، وبالتالي تُصبح أبعاد الخزان الداخليّة هي: تصميم منزل 100متر مربع 5 * 20 م2 home design 5 x 20 m into 3 bedrooms ketchin 3 bath dining room reception. نقدم لكم خريطة منزل مع الواجهة (5*20).

اضخم مكتبه صور لرسومات هندسيه ونماذج مختلفه للديكور والتفصيلات المختلفه
اضخم مكتبه صور لرسومات هندسيه ونماذج مختلفه للديكور والتفصيلات المختلفه from 1.bp.blogspot.com
‫وتشمل أعمال تخطيط الموقع والد والحفر والردم‬ ‫والحلل ونقل التربة وصب الخرسانات العادية والمسلحة‬ ‫‪.‬وبناء الحوائط ووضع الطبقات العازلة ‫تقاس جميع أعمال البياض الداخلي هندسيًا بالمتر‬ ‫المسطح للسقف والحوائط والكمرات وتخصم منه الفتحات‬ ‫‪.‬والجزاء الغير مبيضة كل. 28، 18، 13 في قانون المساحة السطحية لمتوازي المستطيلات، ينتج أنّ: ويتوقف نوع العينه علي تتابع طبقات التربه. تøµù…ùšù… تصميم منزل 100متر مربع 5 * 20 م2 home design 5 x 20 m into 3 bedrooms ketchin 3 bath dining room reception. صندوق تسجيل طوله 11 وعرضه 7 وارتفاعه 1.5 ما مساحة السطح الكلية لحزمة تحتوي على 5 أشرطة تسجيل من نفس النوع. 1 آر يساوي 100 متر مربع. بسْمِ اللهِ الرَّحْمنِ الرَّحِيمِ متابعينا الافاضل نقدم لكم مجموعة من واجهات المنازل واجهات منازل بعرض (7 متر) نتمنى ان تنال رضاكم. تخطيط هندسي لمنزل طوله 20متر وعرضه5 متر :

20 متر = 20000 مليمتر.

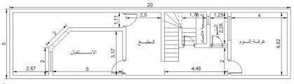
تخطيط هندسي لمنزل طوله 20متر وعرضه5 متر : و هو مكان مخصص لأستقبال الضيوف بمساحة 20 متر مربع. 2 هكتار كم يساوي من متر؟ , شكل هندسي له تسعةحروف وخمس اوجه وستة روس. 20 متر = 20000 مليمتر. A room with a length of 5 meters, 4 meters wide, 5 in 4, and 20 meters flat. ‫وتشمل أعمال تخطيط الموقع والد والحفر والردم‬ ‫والحلل ونقل التربة وصب الخرسانات العادية والمسلحة‬ ‫‪.‬وبناء الحوائط ووضع الطبقات العازلة ‫تقاس جميع أعمال البياض الداخلي هندسيًا بالمتر‬ ‫المسطح للسقف والحوائط والكمرات وتخصم منه الفتحات‬ ‫‪.‬والجزاء الغير مبيضة كل. التحويل بين الوحدات (m → mm) أو راجع جدول التحويل. موضوع جيد لكن للاسف ينقصه تحديد كم يتسع كل كونتينر يعني ابو ٢٠ قدم كم ياخذ متر مكعب يعني كم cbm وابو ٤٠ قدم كم ياخذ ؟ بما أن سمك جدران الخزّان متر واحد فإن أبعاد الخزان الداخليّة ستقل بمقدار 2م عن أبعاده الخارجية، وبالتالي تُصبح أبعاد الخزان الداخليّة هي: تخطيط هندسي لمنزل طوله 20متر وعرضه5 متر : ,4 م مكعب رمل ,8 متر مكعب سن (زلط) 350 كج أسمنت 175 لتر مياة صالحة للشرب. The size of the result of hitting the flat space is rising.

2 هكتار كم يساوي من متر؟ تم إضافة الإجابة من قبل مستخدم محذوف‎ قبل 3 سنوات. طبعاً أنا بحثت كثيراً لكن كل المخططات اللي كنت أحصل عليها لفلل وقصور وإحنا يا دوب منزل صغير وكفاها الله. تصميم منزل 100متر مربع 5 * 20 م2 home design 5 x 20 m into 3 bedrooms ketchin 3 bath dining room reception. اینکه چطور می توان از یک زمین دراز و کشیده بهترین عملکرد ممکن را انتظار داشت.

تصميم هندسي لخرائط بناء مساحة 100م 5 20
تصميم هندسي لخرائط بناء مساحة 100م 5 20 from 2.bp.blogspot.com
1 آر يساوي 100 متر مربع. موضوع جيد لكن للاسف ينقصه تحديد كم يتسع كل كونتينر يعني ابو ٢٠ قدم كم ياخذ متر مكعب يعني كم cbm وابو ٤٠ قدم كم ياخذ ؟ ويتوقف نوع العينه علي تتابع طبقات التربه. تصميم منزل 100متر مربع 5 * 20 م2 home design 5 x 20 m into 3 bedrooms ketchin 3 bath dining room reception. 2 هكتار كم يساوي من متر؟ صندوق تسجيل طوله 11 وعرضه 7 وارتفاعه 1.5 ما مساحة السطح الكلية لحزمة تحتوي على 5 أشرطة تسجيل من نفس النوع. تøµù…ùšù… تصميم منزل 100متر مربع 5 * 20 م2 home design 5 x 20 m into 3 bedrooms ketchin 3 bath dining room reception. تخطيط هندسي لمنزل طوله 20متر وعرضه5 متر :

رø³ù… تصميم منزل 100متر مربع 5 * 20 م2 home design 5 x 20 m into 3 bedrooms ketchin 3 bath dining room reception.

The size of the result of hitting the flat space is rising. و هو عبارة عن غرفة نوم للضيوف بمساحة 17 متر مربع و هي مساحات كافية لفرش الغرفة بالكامل من السرير و الدواليب و جميع العناصر. A room with a length of 5 meters, 4 meters wide, 5 in 4, and 20 meters flat. السلام عليكم السؤال هو كلمة السر هي شكل هندسي مكون من 5 خمسة حروف احرف فما هو الجواب مخروط للمعلومية اخواني في الرياضيات. ,4 م مكعب رمل ,8 متر مكعب سن (زلط) 350 كج أسمنت 175 لتر مياة صالحة للشرب. صندوق تسجيل طوله 11 وعرضه 7 وارتفاعه 1.5 ما مساحة السطح الكلية لحزمة تحتوي على 5 أشرطة تسجيل من نفس النوع. ناخد عينه لكل متر عمق من الجسه ولو لقيت تغير ف الطبقات في المتر الواحد ناخد عينه كل 0.5 متر، وعند استخراج العينه بكتب عليها اسم الموقع ورقم الجسه وعمق العينه وتاريخ استخراجها ومكان العينه. تم إضافة الإجابة من قبل مستخدم محذوف‎ قبل 3 سنوات. تخطيط هندسي لمنزل طوله 20متر وعرضه5 متر : بما أن سمك جدران الخزّان متر واحد فإن أبعاد الخزان الداخليّة ستقل بمقدار 2م عن أبعاده الخارجية، وبالتالي تُصبح أبعاد الخزان الداخليّة هي: التحويل بين الوحدات (m → mm) أو راجع جدول التحويل. ما هو الهكتار والهكتار كم متر مربع وكم كيلو مربع كل ذلك سوف يتم شرحه بالتفصيل، مع التعرف لو اعتبرنا أن الهكتار الواحد من أرض هيكون على شكل مربع ، اذاً سوف تكون ابعاده كالتالي: در این آموزش شما تبدیل واحد های اندازه گیریمتر سانتی متر و میلی متر را در اسکچاپ یاد خواهید گرفت برای آموزش های بیشتر به اسکچاپر سری بزنید sketchuper.ir.

Posting Komentar

Lebih baru Lebih lama

Facebook